Ferienhaus von 1974 in Bjerregård – Ursprünglich und gemütlich
Julianevej 102, Bjerregård - Ferienhausnr.: B2710
Über das Haus
Dieses charmante Ferienhaus in Bjerregård bietet euch Platz für bis zu 5 Personen und verbindet eine gemütliche Atmosphäre mit funktionaler Ausstattung. In Julianevej 102 erwartet euch ein Ferienhaus, das ursprünglich im Jahr 1974 gebaut wurde und bis heute seinen besonderen Charakter bewahrt hat. Hier könnt ihr gemeinsam entspannen und die Auszeit genießen.
Ferienhaus mit Charakter und Komfort auf Julianevej 102
Das ursprünglich im Jahr 1974 erbaute Ferienhaus hat seinen authentischen Stil bewahrt und wurde gleichzeitig sinnvoll ergänzt. Die Kombination aus klassischen Elementen und modernen Details sorgt für eine angenehme Balance.
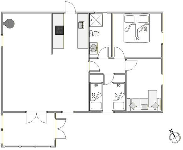
Das 2-Sterne-Ferienhaus in Bjerregård überzeugt mit 66 m2 Wohnfläche und einer durchdachten Aufteilung. Der Wohnbereich ist offen gestaltet und wird durch einen Kaminofen ergänzt, der an kühleren Tagen für eine angenehme Wärme sorgt. Der Wintergarten erweitert den Wohnraum und schafft einen hellen Ort zum Verweilen.
Unterstützt wird dies durch eine moderne Wärmepumpe. Die Küche ist praktisch eingerichtet und verfügt über eine Spülmaschine, sodass ihr euch ganz auf eure gemeinsame Zeit konzentrieren könnt. Insgesamt stehen euch 3 Schlafzimmer zur Verfügung, die sich auf 1 Doppelbett und 2 Einzelbetten verteilen. Die 5. Schlafgelegenheit befindet sich auf einer Ausziehcouch im 3. Zimmer.
Das Badezimmer ist funktional ausgestattet und bietet zusätzlichen Komfort durch eine Fußbodenheizung.
Außenbereich und Naturgrundstück
Das Dünengrundstück bietet euch viel Platz, um Zeit im Freien zu verbringen. Auf der Terrasse könnt ihr die frische Luft genießen oder den Tag entspannt ausklingen lassen. Für die jüngeren Personen steht eine Schaukel bereit, während ihr euch zurücklehnen und die Umgebung auf euch wirken lassen könnt. Der Strand ist nur 300 m entfernt und lädt zu ausgedehnten Spaziergängen ein. Einkaufsmöglichkeiten erreicht ihr nach etwa 1000 m.
Urlaub im Ferienhaus in Bjerregård
Ein Ferienhaus in Bjerregård ist der ideale Ausgangspunkt für abwechslungsreiche Urlaubstage. Die Region ist bekannt für ihre beeindruckende Natur, die sich perfekt zu Fuß oder mit dem Fahrrad erkunden lässt. Zwischen Nordsee und Fjord findet ihr zahlreiche Möglichkeiten für Aktivitäten oder ruhige Momente in der Natur. Dieses Ferienhaus verbindet den Charme eines ursprünglich gebauten Domizils mit einer Lage, die euch vielfältige Erlebnisse ermöglicht.
- Schlafzimmer:3
- Wohn-/Grundfläche:66 / 1899 m²
- Baujahr:1974
Servicebüro
Esmark Bjerregard
Telefon: 00 45 69 15 96 12
E-Mail: bjerregaard@esmark.dk
Schlüsselübergabe
Den Schlüssel könnt ihr ab 15.00 Uhr abholen. Wir händigen euren Schlüssel aber auch gerne vorzeitig aus, wenn das Haus früher bezugsfertig ist.
Ausstattung
Kalender
Über die Gegend

Dein Servicebüro in der Nähe
Esmark Bjerregard
Sønder Klitvej 195
6960 Hvide Sande
Telefon: 00 45 69 15 96 12
E-Mail: bjerregaard@esmark.dk
Lage und Landschaft
Bjerregard zählt zu einem der beliebtesten Feriengebieten Dänemarks und liegt auf der schmalen Landzunge Holmsland Klit zwischen der Nordsee und dem ruhigen Ringkøbing Fjord. Die Landschaft ist geprägt von weiten Heide und Dünenflächen. Die Ferienhäuser liegen verteilt im hügeligen Dünengelände, teils strandnah und oft nur wenige Gehminuten vom Meer entfernt.
Einkaufen und Shopping
Der Kaufmann "Min Købmand“ in Bjerregård ist ganzjährig geöffnet und bietet alles für den täglichen Bedarf sowie frisch gebackene Brötchen am Morgen. Für ausgedehnte Einkaufstouren erwartet euch in Hvide Sande (ca. 15 km entfernt) eine abwechslungsreiche Auswahl an Geschäften. Die historische Handelsstadt Ringkøbing (ca. 30 km) begeistert zudem mit einer gemütlichen Einkaufsstrasse zum Bummeln sowie Fachmärkte am Stadtrand.
Restaurants und Cafés
Direkt neben dem Kaufmann befindet sich „Nordsø Fisk“ (saisonal geöffnet) mit einer großen Auswahl an fangfrischem Fisch, köstlichen Räucherspezialitäten und Take-away. Sehr empfehlenswert ist auch ein Abendessen im historischen Nymindegab Kro (ca. 7 km entfernt). Alternativ lohnt sich ein Ausflug nach Hvide Sande (ca. 15 km), wo euch zahlreiche gemütliche Cafés und hervorragende Restaurants (lokalen Fisch, Fleisch & Italienisch) direkt am Hafen erwarten.
Aktivurlaub und Freizeit
Die Umgebung ist ein echtes Eldorado für Aktivurlauber. Genießt ein Bad in den Wellen der Nordsee oder im kinderfreundlichen, flachen Wasser des Fjords (zum Beispiel in Bork Havn). Die abwechslungsreiche Natur lädt zu Wanderungen, Bernsteinjagd und Fahrradtouren auf dem Radweg durch die Dünen ein. Der Fjord ist außerdem weltweit bekannt für Windsurfen, Kitesurfen und Stand-up-Paddling. In Nymindegab könnt ihr zudem eine Fahrt mit der beliebten Schienenfahrrad unternehmen.
Sehenswürdigkeiten
Entdeckt das Vogelschutzgebiet Tipperne (ca. 12 km entfernt), besucht den historischen Strandvogthof Abelines Gaard (ca. 8 km) oder genießt die beeindruckende Aussicht vom Leuchtturm Lyngvig Fyr (ca. 21 km). In Hvide Sande bietet das Museum „Fiskeriets Hus“ spannende Einblicke in die lokale Geschichte und die Fischereitradition der Region. Im JyllandsAkvariet Hvide Sande kommt ihr dem Leben unter der Meeresoberfläche faszinierend nah.
Urlaub mit Hund
Die Strände der Nordsee sind ein wahres Paradies für Hunde. Bitte beachtet die geltende Leinenregelung. Hier gibt es viel Platz zum Toben, Spielen und für ausgedehnte Spaziergänge am Wasser. Für Freilauf ohne Leine empfiehlt sich der eingezäunte Hundewald in der Nymindegab (ca. 8 km entfernt). Dort kann euer vierbeiniger Begleiter sicher und unbeschwert laufen.
Spaß für die ganze Familie
Kleine Gäste werden den zentral gelegenen Spielplatz in Bjerregård lieben. Für Wasserratten ist das große Lalandia in Søndervig (ca. 28 km entfernt) ein garantiertes Highlight für Kinder. LEGOLAND® (ca. 65 km) und der WOW PARK in Skjern (ca. 30 km) sorgen mit spannenden Attraktionen und Naturerlebnissen für unvergessliche Abenteuer. Auch ein Ausflug nach Bork Vikingehavn (ca. 15 km) ist eine aufregende Zeitreise für kleine Wikinger.
328
328
328
Aufgelistet in: GebieteBjerregårdJulianevej 102, 6960 Hvide Sande
Alle ansehen: Ferienhäuser in Dänemark















































