Modernes 5-Sterne-Ferienhaus direkt am Meer mit Wellnessbereich
Bjerregårdsvej 478, Bjerregård - Ferienhausnr.: BB1063
Über das Haus
50 Meter weiter Richtung Westen und schon stehst du direkt am Strand – was ein Traum! Den dürft ihr jetzt nicht nur zu Hause träumen, sondern in eurem Urlaub im Bjerregårdsvej 478 so richtig leben. Komplett ausgestattet, inklusive Whirlpool und Sauna, wird euch dieses 5-Sterne-Ferienhaus in Bjerregård rundum glücklich machen. Deinen Hund darfst du natürlich nicht vergessen!
Modern eingerichtet mit Wellnessbereich und Aktivitätsbereich
Hier bleiben keine Wünsche offen. Du bist vielseitig und möchtest dich im Urlaub nicht nur erholen, sondern auch ein wenig Action haben? Kein Problem, denn in diesem Ferienhaus steht dir ein Whirlpool und eine Sauna zur Verfügung sowie ein Aktivitätszimmer. Je nachdem, ob du dich nach einem langen Urlaubstag an der Nordsee wieder aufwärmen willst und die Sauna oder den Whirlpool genießen willst oder lieber mit den Kindern den Poolbillard-Tisch ausprobieren möchtest – du entscheidest!
Der Kaminofen ist zentral gelegen, sodass im Gemeinschaftsraum genug Wärme und die tolle Urlaubsatmosphäre ausgestrahlt wird. Vor dem Ofen wird sicherlich auch dein Hund den perfekten Platz zum Dösen finden. Weiterhin befinden hier sich unter anderem das große und bequeme Sofa, der Essbereich mit dem großen Esstisch und die Küche, die zum gemeinsamen Kochen einlädt.
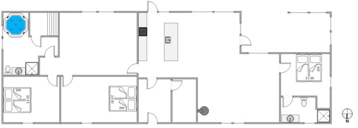
Drei Schlafzimmer mit Doppelbetten können alle 6 Personen beheimaten und einen angenehmen Schlaf schenken. Außerdem ist das Ferienhaus in Bjerregård hervorragend mit einem Geschirrspüler, einer Waschmaschine, einem Trockner und einer schnellen Internetverbindung ausgestattet. Die tollen Urlaubsbilder kannst du also direkt mit deiner Heimat teilen. Bitte beachtet: Es gibt 3 deutsche Fernsehprogramme.
Nur 50 Meter vom Strand entfernt - Platz in der 1. Reihe
Ein echtes Highlight des Ferienhauses ist die absolut unschlagbare Lage direkt am Meer. 50 Meter und somit nur wenige Schritte entfernt, befindet sich der kilometerlange Sandstrand und die tosende Nordsee. Mit deinem Vierbeiner kannst du stundenlang Ausflüge unternehmen oder ein kühles Bad in der Nordsee wagen.
Auch von der Terrasse kannst du das Salzwasser förmlich auf deiner Haut spüren. Die geschlossene, teils offene bzw. überdachte Terrasse umgibt das Ferienhaus und wartet nur darauf, dass ihr draußen den Grill anzündet und die frische Seeluft am Abend genießt. Für die Kinder gibt es währenddessen die Sandkiste zum Spielen – wobei die größere Sandkiste, der Strand, direkt benachbart ist.
Als extra Plus ist Bjerregårdsvej 478 mit einer Lademöglichkeit für euer Elektroauto ausgestattet. Für die Nutzung des E-Auto Ladeanschluss ist ein relevantes Kabel/Adapter mitzubringen.
- Schlafzimmer:0
- Wohn-/Grundfläche:0 / 0 m²
- Baujahr:2024
Servicebüro
Esmark Bjerregard
Telefon: 00 45 69 15 96 12
E-Mail: bjerregaard@esmark.dk
Schlüsselübergabe
Den Schlüssel könnt ihr ab 15.00 Uhr abholen. Wir händigen euren Schlüssel aber auch gerne vorzeitig aus, wenn das Haus früher bezugsfertig ist.
GastDeutschland
5 von 5
5 von 5
5 out of 5
5 von 5
5 von 5
5 out of 5
Unser absolut perfektes Traumhaus
Saskia BognerDeutschland
5 von 5
5 von 5
5 out of 5
5 von 5
5 von 5
5 out of 5
Modernes, Supergut ausgestattetes Ferienhaus direkt hinter der Düne. Der Dünenaufgang ist an dieser Stelle nicht zu steil und gut zu bewältigen. Das Haus liegt wunderschön in der Landschaft. Die große Terrasse lädt zum Verweilen in der Sonne ein. Im Haus findet man alles, was man benötigt und mehr. Die beiden Badezimmer liegen sehr gut zu den Schlafzimmern. Die Küche ist wunderbar ausgestattet Auf dem großen Sofa kann man problemlos und sehr gemütlich einen Fernsehabend verbringen. Sehr gut gepflegtes Haus. Es gibt keine Verbesserungsvorschläge. Draußen im Aufbewahrungsraum, wo sich die Polster für die Liegen befinden, schimmelt leider der Boden. Den könnte man sich mal genauer anschauen. Wir haben auf die Polster verzichtet.
Karl-Heinz GunkelDeutschland
5 von 5
5 von 5
5 out of 5
5 von 5
5 von 5
5 out of 5
Ein sehr schönes Haus, in sehr guter Lage zum Strand. Schöner Blick auf die Dünen, durch die große Fensterfront. Es fehlen Topflappen um das heiße Backblech aus dem Ofen zu holen.
Leif GlückstadtDeutschland
5 von 5
5 von 5
5 out of 5
5 von 5
5 von 5
5 out of 5
Traumhaftes Ferienhaus, sehr modern eingerichtet und sehr sauber. Es fehlt an nichts!
Fritz FischerDeutschland
5 von 5
5 von 5
5 out of 5
5 von 5
5 von 5
5 out of 5
Modern eingerichtetes Ferienhaus mit einem gut funktionierenden Kamin. Sehr gut eingerichtete Küche. Für unseren Hund stand sogar ein Hundekorb zur Verfügung. Sehr gute Lage, kurze Entfernung zum weitläufigen und wunderschönen Strand.
Sonja KeulDeutschland
5 von 5
5 von 5
5 out of 5
5 von 5
5 von 5
5 out of 5
Wir waren nun schon öfter in diesem Ferienhaus und haben uns wieder sehr wohl gefühlt. Alles schön hell und liebevoll eingerichtet, die Ausstattung hat alles was man im Urlaub so braucht. Diesmal hatten wir niedrige Außentemperaturen und das Haus war trotzdem schön warm mit nur ein paar Stückchen Holz im Kaminofen. Der kurze Weg zum Strand ist immer herrlich. Wir kommen gerne wieder in dieses Haus
René BartholomayDeutschland
5 von 5
5 von 5
5 out of 5
5 von 5
5 von 5
5 out of 5
Das Grundstück liegt direkt an der Düne zur Nordsee. Nur einmal rüber und schon genießt man den Strand (auch im November) Die Terrasse ist komplett mit einem geschlossenen Zaun versehen, was im Sommer sicherlich mega praktisch ist. Die Inneneinrichtung ist top - den Billardtisch haben wir gerne genutzt!
GastDeutschland
5 von 5
5 von 5
5 out of 5
5 von 5
5 von 5
5 out of 5
Traumhaftes Ferienhaus…ideal zum Erholen und Entspannen.
Catharina LutzeDeutschland
4.5 von 5
4.5 von 5
4.5 out of 5
4.5 von 5
4.5 von 5
4.5 out of 5
Wir hatten einen rundum perfekten Aufenthalt in diesem wunderschönen, modernen Ferienhaus! Die Lage ist einfach ideal – nur wenige Schritte vom Strand entfernt. Bei unserer Ankunft wurden wir sogar mit einer Flasche Sekt und einer liebevollen Willkommenskarte auf dem Tisch von den Eigentümern überrascht, eine tolle Geste über die wir uns sehr gefreut haben. Das Haus war makellos sauber und sehr gepflegt. Besonders positiv hervorzuheben ist das hervorragende WLAN, das in jedem Raum zuverlässig funktioniert. Auch der Aktivitätsraum war ein echtes Highlight und wurde von uns gerne und oft genutzt. Wir haben uns von Anfang an wohlgefühlt und kommen sehr gerne wieder und können es ausnahmslos weiterempfehlen!
Laura BarduhnDeutschland
5 von 5
5 von 5
5 out of 5
5 von 5
5 von 5
5 out of 5
Wir waren als Familie mit Hund für eine Woche in diesem wunderschönen Ferienhaus! Es ist so geschmackvoll eingerichtet und hat eine wunderbare Ausstattung. Die Terrasse ist windgeschützt und nicht einsehbar. Wir haben uns sehr wohl gefühlt und der Billardtisch ist viel bespielt worden! Auch die Flasche Wein zur Begrüßung war toll! Wir werden bestimmt nochmal wieder kommen! Spitzen Haus und nur weiterzuempfehlen!!!
Dietmar GulzDeutschland
5 von 5
5 von 5
5 out of 5
5 von 5
5 von 5
5 out of 5
Dieses Haus besticht durch seine einmalige Lage zum Strand, der wunderbaren Raumeinteilung, einem tollen Aktivraum, überdachte und nicht überdachte Terrasse und einem hervorragenden Gasgrill. Die Küche ist perfekt eingerichtet, es gibt einen Whirlpool und eine Sauna, man fühlt sich einfach rundherum wohl.
GastSchweiz
5 von 5
5 von 5
5 out of 5
5 von 5
5 von 5
5 out of 5
Das Ferienhaus war an einer sehr schönen Lage direkt beim Zugang zum Meer. Die Innenausstattung war super.
GastDeutschland
5 von 5
5 von 5
5 out of 5
5 von 5
5 von 5
5 out of 5
Ein sehr großes, sauberes und helles Ferienhaus, das allen Bedürfnissen einer Familie gerecht wird. Man fühlt sich von Beginn an sehr wohl. Die Lage ist direkt am Strand, was mit Kindern super ist.
Sonja KeulDeutschland
4 von 5
4 von 5
4 out of 5
4 von 5
4 von 5
4 out of 5
Ein sehr schön eingerichtetes Haus mit perfekter Strandlage. Großzügiger Eingangsbereich. Gute Aufteilung der Zimmer
GastDeutschland
5 von 5
5 von 5
5 out of 5
5 von 5
5 von 5
5 out of 5
2 Liegen sind zu wenig. Das Haus war ansonsten sehr schön und toll.
Martina PetznikDeutschland
5 von 5
5 von 5
5 out of 5
5 von 5
5 von 5
5 out of 5
Modernes neues Ferienhaus für 6 Personen mit Sauna,Billardtisch und Innenwhirlpool. 2 getrennte Bäder. Überdachte windgeschützte Terrasse, Grillmöglichkeit (Gas). Lage: direkt hinter der Düne, man kann das Meer hören. Walbox vorhanden.
GastDeutschland
5 von 5
5 von 5
5 out of 5
5 von 5
5 von 5
5 out of 5
Weiterempfehlung auf höchstem Niveau. Perfekter Urlaub, mit allem was das Herz begehrt. Das Haus ist top ausgestattet mit allem was man braucht. Der große Eingangsbereich ist alleine schon ein Traum. Vom Bad über die Küche, bis hin zu jedem einzelnen Zimmer, alles da. Zusätzliches Highlight ist der Aktivitätsraum mit Billiard und Dart - tolle Abwechslung. Die Terrasse ist klasse. Obwohl in erster Dünenreihe gelegen und direkt am Gang ist diese nicht einsehbar. Mit mehreren Tischen/Stühlen kann man je nach Wetterlage auch gemütlich draußen sitzen oder man entspannt sich ganz gemütlich auf den Liegen. Ein kleiner Abstellraum befindet sich ebenfalls am Haus. Hier kann man Fahrräder usw. unterbringen. Man könnte noch so viel positives schreiben, aber am besten man überzeugt sich einfach selbst und bucht dieses fantastische Haus. Von uns eine klare 100% ige Weiterempfehlung !
GastDeutschland
5 von 5
5 von 5
5 out of 5
5 von 5
5 von 5
5 out of 5
Ein modernes Haus mit sehr guter Raumaufteilung. Die Billardplatte zentral mit im Haus, aber über eine Tür akustisch vom Wohnraum getrennt. Konkurrenzlos perfekte Lage zum Standzugang. Küche schön zum Wohntaum gelegen. Fernseher in jedem Raum. Praktischer großer Vorraum mit Tür zum Wohnraum: perfekt vor allem im windigen Winter und mit großer Garderobe.
Anna HomannDeutschland
5 von 5
5 von 5
5 out of 5
5 von 5
5 von 5
5 out of 5
Modernes Ferienhaus in sehr schöner Lage direkt am Strand. Sehr gut ausgestattet. Wir haben uns sehr wohl gefühlt.
Manon TolkowskiDeutschland
5 von 5
5 von 5
5 out of 5
5 von 5
5 von 5
5 out of 5
Wir waren noch nie in einem so gut ausgestatteten Ferienhaus: es war wirklich rundum perfekt. Das Ferienhaus war super sauber und die Lage ist einmalig. Das Haus ist auch sehr gut isoliert. Wir waren über Silvester mit unseren Angsthund dort und sie hat nichts mitbekommen. Wir sind sehr zufrieden gewesen und können nur anmerken, dass eine richtige Dartscheibe anstatt die elektronische besser wäre :D wir kommen gerne nochmal wieder.
Dagmar WilkensDeutschland
5 von 5
5 von 5
5 out of 5
5 von 5
5 von 5
5 out of 5
Großzügiges Haus , gut geschnitten für eine größere Familie, klares schönes Design, Spielzimmer und großer Aussenbereich mit Spielmöglichkeiten für Kinder. Die Lage ist excellent, nahe am Meer, trotzdem ruhig. Die Sauberkeit erstklassig, neue Bettsachen und gutes, ausreichendes Geschirr.Sehr zu empfehlen.
GastDeutschland
5 von 5
5 von 5
5 out of 5
5 von 5
5 von 5
5 out of 5
Nein, alles prima. Wir haben für nächstes Jahr das Haus wieder gebucht.
GastDeutschland
5 von 5
5 von 5
5 out of 5
5 von 5
5 von 5
5 out of 5
Sehr gepflegtes und hervorragend eingerichtetes Haus. Es gibt nichts zu meckern.
Dietmar GulzDeutschland
5 von 5
5 von 5
5 out of 5
5 von 5
5 von 5
5 out of 5
Dieses Haus hat alles was man für einen tollen Urlaub benötigt. Wir haben es deshalb schon zwei mal gebucht und nächstes Jahr wieder
GastDeutschland
4.5 von 5
4.5 von 5
4.5 out of 5
4.5 von 5
4.5 von 5
4.5 out of 5
Helles und modernes Ferienhaus direkt neben dem Strand. Tolle Ausstattung und mit viel Privatsphäre, da das Haus in die Düne eingebettet ist.
GastDeutschland
5 von 5
5 von 5
5 out of 5
5 von 5
5 von 5
5 out of 5
Das Ferienhaus ist eine wunderschöne Urlaubsadresse in unmittelbarer Nähe zum Meer. Es bietet jeglichen Komfort, hat eine traumhafte Außenterrasse und ist top ausgestattet. Wir durften dort 2 wundervolle Wochen verbringen und werden sicherlich nochmal wiederkommen.
Michael RothmeyerDeutschland
5 von 5
5 von 5
5 out of 5
5 von 5
5 von 5
5 out of 5
Ein Haus zum Wohlfühlen, an dem es an nichts fehlt. In erster Reihe, mit kurzem Weg zum Strand, ideal für Familien mit Kindern.
Antje TraueDeutschland
4.5 von 5
4.5 von 5
4.5 out of 5
4.5 von 5
4.5 von 5
4.5 out of 5
Das Haus lsd keine Wünsche offen, liegt direkt hinter der Düne. Das Meer kann man hören, riechen und sogar schmecken. Wunderbar! Die Aufteilung der Zimmer kam den unterschiedlichen Schlafrhythmen sehr entgegen. Die Langschläfer wurden nicht von den Frühaufstehern gestört. Am Billardtisch verbrachten wir einige Abende. Das Haus ist sehr modern und großzügig.
Ausstattung
Kalender
Über die Gegend

Dein Servicebüro in der Nähe
Esmark Bjerregard
Sønder Klitvej 195
6960 Hvide Sande
Telefon: 00 45 69 15 96 12
E-Mail: bjerregaard@esmark.dk
Lage und Landschaft
Bjerregard zählt zu einem der beliebtesten Feriengebieten Dänemarks und liegt auf der schmalen Landzunge Holmsland Klit zwischen der Nordsee und dem ruhigen Ringkøbing Fjord. Die Landschaft ist geprägt von weiten Heide und Dünenflächen. Die Ferienhäuser liegen verteilt im hügeligen Dünengelände, teils strandnah und oft nur wenige Gehminuten vom Meer entfernt.
Einkaufen und Shopping
Der Kaufmann "Min Købmand“ in Bjerregård ist ganzjährig geöffnet und bietet alles für den täglichen Bedarf sowie frisch gebackene Brötchen am Morgen. Für ausgedehnte Einkaufstouren erwartet euch in Hvide Sande (ca. 15 km entfernt) eine abwechslungsreiche Auswahl an Geschäften. Die historische Handelsstadt Ringkøbing (ca. 30 km) begeistert zudem mit einer gemütlichen Einkaufsstrasse zum Bummeln sowie Fachmärkte am Stadtrand.
Restaurants und Cafés
Direkt neben dem Kaufmann befindet sich „Nordsø Fisk“ (saisonal geöffnet) mit einer großen Auswahl an fangfrischem Fisch, köstlichen Räucherspezialitäten und Take-away. Sehr empfehlenswert ist auch ein Abendessen im historischen Nymindegab Kro (ca. 7 km entfernt). Alternativ lohnt sich ein Ausflug nach Hvide Sande (ca. 15 km), wo euch zahlreiche gemütliche Cafés und hervorragende Restaurants (lokalen Fisch, Fleisch & Italienisch) direkt am Hafen erwarten.
Aktivurlaub und Freizeit
Die Umgebung ist ein echtes Eldorado für Aktivurlauber. Genießt ein Bad in den Wellen der Nordsee oder im kinderfreundlichen, flachen Wasser des Fjords (zum Beispiel in Bork Havn). Die abwechslungsreiche Natur lädt zu Wanderungen, Bernsteinjagd und Fahrradtouren auf dem Radweg durch die Dünen ein. Der Fjord ist außerdem weltweit bekannt für Windsurfen, Kitesurfen und Stand-up-Paddling. In Nymindegab könnt ihr zudem eine Fahrt mit der beliebten Schienenfahrrad unternehmen.
Sehenswürdigkeiten
Entdeckt das Vogelschutzgebiet Tipperne (ca. 12 km entfernt), besucht den historischen Strandvogthof Abelines Gaard (ca. 8 km) oder genießt die beeindruckende Aussicht vom Leuchtturm Lyngvig Fyr (ca. 21 km). In Hvide Sande bietet das Museum „Fiskeriets Hus“ spannende Einblicke in die lokale Geschichte und die Fischereitradition der Region. Im JyllandsAkvariet Hvide Sande kommt ihr dem Leben unter der Meeresoberfläche faszinierend nah.
Urlaub mit Hund
Die Strände der Nordsee sind ein wahres Paradies für Hunde. Bitte beachtet die geltende Leinenregelung. Hier gibt es viel Platz zum Toben, Spielen und für ausgedehnte Spaziergänge am Wasser. Für Freilauf ohne Leine empfiehlt sich der eingezäunte Hundewald in der Nymindegab (ca. 8 km entfernt). Dort kann euer vierbeiniger Begleiter sicher und unbeschwert laufen.
Spaß für die ganze Familie
Kleine Gäste werden den zentral gelegenen Spielplatz in Bjerregård lieben. Für Wasserratten ist das große Lalandia in Søndervig (ca. 28 km entfernt) ein garantiertes Highlight für Kinder. LEGOLAND® (ca. 65 km) und der WOW PARK in Skjern (ca. 30 km) sorgen mit spannenden Attraktionen und Naturerlebnissen für unvergessliche Abenteuer. Auch ein Ausflug nach Bork Vikingehavn (ca. 15 km) ist eine aufregende Zeitreise für kleine Wikinger.
1.338
1.358
1.358
Aufgelistet in: GebieteBjerregårdBjerregårdsvej 478, 6960 Hvide Sande
Alle ansehen: Ferienhäuser in Dänemark





















































