Gemütliches Ferienhaus in Bjerregård mit toller Terrasse
Julianevej 28, Bjerregård - Ferienhausnr.: B2012
Über das Haus
Im Julianevej 28 liegt euer schönes Ferienhaus mit geschlossener Terrasse in Bjerregård, dass nur 700 Meter von der Nordsee und ca. 600 Meter vom Kaufmann entfernt liegt. Das Sommerhaus ist mit einer Waschmaschine, einem Geschirrspüler und kostenlosem WLAN ausgestattet.
Sommerhaus für 4 Personen
Das Herz des Ferienhauses ist der gemütliche und offene Küchen,- und Wohnbereich, der zum gemeinsamen Kochen und Beisammensein einlädt. Die große Fensterfront lässt viel Licht rein und bietet gleichzeitig einen tollen Blick auf das Grundstück. Die stilvolle Einrichtung wurde aufeinander abgestimmt, damit ihr euch gleich wie zu Hause fühlt und den Urlaub in vollen Zügen genießen könnt.
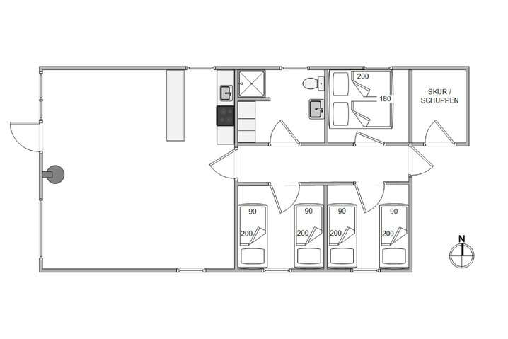
Im Ferienhaus haben bis zu 4 Personen Platz, es sind drei Schlafzimmer vorhanden, eins mit Doppelbett und in den anderen zwei sind jeweils zwei Einzelbetten vorhanden, deshalb eignet sich das ideal für eine kleine Familie mit Kindern. Auch der Geschirrspüler, die Waschmaschine und der Trockner sind sicherlich sehr praktisch als Haushaltshelfer für Familien.
Die geschlossene Terrasse lädt zum Sonnen und Grillen ein
Ein weiterer Pluspunkt ist die geschlossene Terrasse. Die Kinder können bei schönem Wetter draußen auf der Terrasse spielen, und ihr braucht euch keine Sorgen zu machen, dass sie das Gebiet auf eigene Faust erkunden. Auf der Terrasse stehen Gartenmöbel und ein Grill für euch bereit, einem gemütlichem Grillabend mit der Familie steht also nichts mehr im Wege.
Euer Ferienort zum Wohlfühlen
Euer Ferienort Bjerrregård ist nicht nur bei Angerln und Wassersportlern sehr beliebt, sondern lädt auch Familien und Pärchen auf entspannte Urlaube ein. Genießt die Natur rund um den Ringkøbing Fjord und lasst es euch bei einem leckeren Picknick in der Dünenlandschaft gutgehen.
- Schlafzimmer:3
- Wohn-/Grundfläche:73 / 1300 m²
- Renoviert / Baujahr:2016 / 1970
Servicebüro
Esmark Bjerregard
Telefon: 00 45 69 15 96 12
E-Mail: bjerregaard@esmark.dk
Schlüsselübergabe
Den Schlüssel könnt ihr ab 15.00 Uhr abholen. Wir händigen euren Schlüssel aber auch gerne vorzeitig aus, wenn das Haus früher bezugsfertig ist.
Svenja Sievert-BorchertDeutschland
5 von 5
5 von 5
Das schönste Ferienhaus, was ich in knapp 40 Jahren gefunden habe. Die Einrichtung ist so schön und stimmig, sehr modern und stilvoll. Wir haben uns sehr zu Hause gefühlt. Es hat nichts gefehlt. Die Ausstattung der Küche ist hervorragend . Alles war total gut durchdacht. In jeder Ecke draußen Sitzgelegenheiten. Und von der Größe für 2-4 Personen auch ausreichend. Ein kleines Juwel. Ich hoffe ich finde nochmal eine freie Woche um wieder zu kommen.
GastDeutschland
5 von 5
5 von 5
Das Ferienhaus entspricht genau den Vorgaben. Es ist alles vorhanden, was benötigt wird. Es war bei der Ankunft alles sehr sauber. Besonders der Willkommensgruß der Eigentümer hat mich sehr gefreut!
GastDeutschland
5 von 5
5 von 5
Dieses Ferienhaus ist mit viel Liebe eingerichtet. Es hat an nichts gefehlt. Zur Begrüßung gab es für die Erwachsen eine Flasche Wein und im Gefrierschrank lagen für die Kinder Eis. Frische Blumen schmückten den Tisch.
GastDeutschland
4.5 von 5
4.5 von 5
Super Ferienhaus. Liebevoll eingerichtet.
GastDeutschland
5 von 5
5 von 5
Das Ferienhaus war sehr sauber. Die Küchenutensilien gepflegt, es hat an nichts gefehlt.
GastDeutschland
5 von 5
5 von 5
Modern ausgestattetes Ferienhaus mit vielen Extras die wir sonst seltne/nienhatten: Blutooth-Lautsprecher, Waffeleisen, Heißluftfriteuse, 4 Fernseher. Zusammengefasst ein sehr schönes Haus.
Kirsten MeyerDeutschland
5 von 5
5 von 5
Das war unser erster Urlaub in Dänemark und definitiv nicht der letzte. Sowohl die Dänen und die Landschaft als auch das Ferienhaus haben uns auf Anhieb gefallen. Strand und auch Supermarkt sind innerhalb weniger Minuten zu Fuß erreichbar. Die Gastgeber haben sowohl bei der Ausstattung, als auch bei der Einrichtung des Hauses an alles gedacht, was wichtig ist. Man fühlt sich sofort bei Betreten "zu Hause". Sogar für Regentage wurde mit vielen verschiedenen Gesellschaftsspiele vorgesorgt, was insbesondere unseren Sohn gefreut hat. :) Vielen Dank an die Vermieter, dass sie uns so einen schönen Urlaub ermöglicht haben. Wir kommen auf jeden Fall wieder!
GastDeutschland
5 von 5
5 von 5
Super gemütliches Ferienhaus mit liebe eingerichtet. Die vorhandenen Elektrogeräte, Kochutensiellien, Geschirr und Besteck lassen keine Wünsche offen und egal von wo der Wind weht, es ist immer eine Sitzgelegenheit auf einer Terrasse im Windschatten um draußen verweilen zu können.
Ausstattung
Kalender
Über die Gegend

Dein Servicebüro in der Nähe
Esmark Bjerregard
Sønder Klitvej 195
6960 Hvide Sande
Telefon: 00 45 69 15 96 12
E-Mail: bjerregaard@esmark.dk
458
458
458
Aufgelistet in: GebieteBjerregårdJulianevej 28, 6960 Hvide Sande
Alle ansehen: Ferienhäuser in Dänemark


















































