Ferienhaus mit Pool und Gegenstromanlage im Skodbjergevej 28
Skodbjergevej 28, Skodbjerge - Ferienhausnr.: CC1184
Über das Haus
Mit Platz für bis zu 10 Personen und 2 Hunde empfängt euch euer Ferienhaus im Skodbjergevej 28 in ruhiger Lage von Skodbjerge. Auf einem großzügigen Naturgrundstück gelegen, bietet euch dieses Ferienhaus viel Raum für gemeinsame Urlaubstage mit Familie oder Freunden. Neben hellen Wohnräumen und einer praktischen Ausstattung erwartet euch hier auch ein eigener Poolbereich, der zu jeder Jahreszeit für entspannte Stunden sorgt.
Ferienhaus mit Wellnessbereich und viel Platz für gemeinsame Zeit auf Skodbjergevej 28
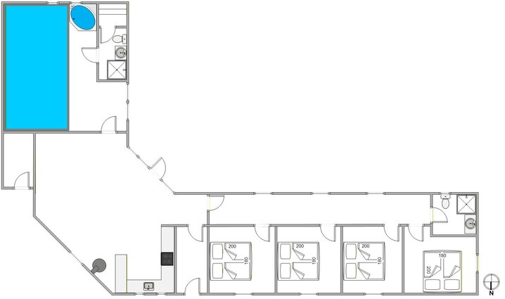
Im Ferienhaus stehen euch insgesamt 200 m² Wohnfläche zur Verfügung. Der durchdachte Grundriss schafft viel Platz für gemeinsame Aktivitäten, ohne dass ihr auf Rückzugsmöglichkeiten verzichten müsst. Herzstück des Ferienhauses ist der eigene Wellnessbereich mit einem etwa 20 m² großen Swimmingpool, Whirlpool und Sauna. Hier könnt ihr euch nach einem langen Strandspaziergang entspannen oder einfach gemeinsam eine schöne Zeit verbringen.
Der Poolbereich wurde zusätzlich mit einer Gegenstromanlage ausgestattet, sodass ihr auch aktiv schwimmen könnt. Gleichzeitig sorgt eine energiesparende Poolpumpe dafür, dass der Pool effizient betrieben wird. Auch im restlichen Ferienhaus trägt eine moderne Wärmepumpe zu einem angenehmen Raumklima bei.
Der offene Wohnbereich ist dank großer Dachfenster hell und freundlich gestaltet. Der durchgehende Klinkerboden unterstreicht die klare und funktionale Einrichtung, die besonders für größere Gruppen gut geeignet ist. Ein Kaminofen sorgt an kühleren Tagen für gemütliche Atmosphäre, während ein Flachbildfernseher für Unterhaltung am Abend bereitsteht. Fußbodenheizung sorgt zusätzlich für angenehme Wärme.
Die angrenzende Küche ist praktisch ausgestattet und bietet mit Geschirrspüler, großem Kühlschrank sowie einem Gefrierfach von 80 Litern alles, was ihr für eure Mahlzeiten benötigt. Auch Angler finden hier ausreichend Platz für ihren Fang. 2 Badezimmer mit Fußbodenheizung erleichtern euch den Alltag, selbst wenn das Ferienhaus voll belegt ist. Waschmaschine und Trockner stehen euch ebenfalls zur Verfügung.
Für die Nachtruhe verteilen sich die Schlafplätze auf 4 Schlafzimmer mit Doppelbetten sowie auf einen Schlafboden mit 2 zusätzlichen Schlafplätzen, der sich besonders für Kinder oder Jugendliche eignet.
Geschlossene Terrasse und viel Platz auf dem Naturgrundstück
Rund um das Ferienhaus im Skodbjergevej 28 erstreckt sich ein schönes Naturgrundstück, das viel Platz zum Entspannen und Spielen bietet. Auf der geschlossenen Terrasse könnt ihr gemütliche Stunden im Freien verbringen. Besonders für Hundebesitzer ist dieser Bereich sehr praktisch.
Genießt gemeinsame Grillabende, entspannt euch in den bequemen Terrassenmöbeln oder beobachtet, wie eure Kinder auf dem Grundstück spielen oder eine Partie Wikingerschach starten.
Ferienhaus in Skodbjerge zwischen Nordsee und Fjord
Ein Ferienhaus in Skodbjerge bedeutet Urlaub mitten in der beeindruckenden Natur des Holmsland Klit. Zwischen Ringkøbing Fjord und der dänischen Nordsee gelegen, erwartet euch hier eine abwechslungsreiche Landschaft aus Dünen und Heide.
Vom Ferienhaus aus sind es nur etwa 500 m bis zum Strand. Der breite Sandstrand und die frische Nordseeluft laden zu langen Spaziergängen, zum Baden oder zu verschiedenen Wassersportarten ein. Auch Radfahrer, Wanderer und Angler finden hier ideale Bedingungen.
Wenn ihr Lust auf einen Ausflug habt, erreicht ihr das lebendige Hafenstädtchen Hvide Sande in kurzer Zeit. Dort erwarten euch gemütliche Cafés, Restaurants, kleine Geschäfte und das maritime Flair des Hafens.
- Schlafzimmer:4
- Wohn-/Grundfläche:200 / 2001 m²
- Renoviert / Baujahr:2015 / 1992
Servicebüro
Esmark Bjerregard
Telefon: 00 45 69 15 96 12
E-Mail: bjerregaard@esmark.dk
Schlüsselübergabe
Den Schlüssel könnt ihr ab 15.00 Uhr abholen. Wir händigen euren Schlüssel aber auch gerne vorzeitig aus, wenn das Haus früher bezugsfertig ist.
Jutta LejeuneDeutschland
4 von 5
4 von 5
4 out of 5
4 von 5
4 von 5
4 out of 5
Wir haben uns sehr wohl gefühlt! Der Pool ist ein bisschen in die Jahre gekommen, die Sauna war doch schon stark abgenutzt wir haben sie nicht benutzt! Sonst war alles ok!
GastDeutschland
4 von 5
4 von 5
4 out of 5
4 von 5
4 von 5
4 out of 5
Das Haus ist geräumig, gut aufgeteilt, die Betten sind bequem. Das Sofa ist leider in die Jahre gekommen. Der Pool ist super und angenehm temperiert. Zum Whirlpool und zur Sauna können wir nichts sagen, da wir diese nicht benutzt haben. In diesem Haus kann man seinen Urlaub gut verbringen.
Tobias KrolageDeutschland
4 von 5
4 von 5
4 out of 5
4 von 5
4 von 5
4 out of 5
Schönes Haus, super Lage und toller Wellnessbereich
GastDeutschland
2.5 von 5
2.5 von 5
2.5 out of 5
2.5 von 5
2.5 von 5
2.5 out of 5
Das Ferienhaus ist schön geschnitten mit viel platz, allerdings sehr in die Jahre gekommen. Das Badezimmer im Pool Bereich sehr klein.
Christian PrüferDeutschland
5 von 5
5 von 5
5 out of 5
5 von 5
5 von 5
5 out of 5
Tolles Ferienhaus für zwei Familien, großer Pool und sehr gut ausgestattete Küche. Strand kann zu Fuß in wenigen Minuten erreicht werden.
Marco VolkmarDeutschland
3.5 von 5
3.5 von 5
3.5 out of 5
3.5 von 5
3.5 von 5
3.5 out of 5
Gutes Preis Leistungsverhältnis Kurze Entfernung zum Strand Pool super Sehr gute Aufteilung des Ferienhauses
Sabina AxtmannDeutschland
0.5 von 5
0.5 von 5
0.5 out of 5
0.5 von 5
0.5 von 5
0.5 out of 5
Das Ferienhaus sieht von außen sehr gut aus. Die Raumaufteilung ist gut. Die Lage super. Die Inneneinrichtung sollte generalüberholt werden. Das Haus steht zum Verkauf. Es wäre schön wenn es trotzdem weiter gepflegt wird damit noch viele Gäste dort eine schöne Zeit verbringen können.
GastDeutschland
4 von 5
4 von 5
4 out of 5
4 von 5
4 von 5
4 out of 5
Das Ferienhaus ist für 10 Personen großzügig und gut eingerichtet; auch die 4 Schlafräume sind ausreichend dimensioniert. Die Küche ist schön groß und relativ neu. Die Badezimmer sind etwas "abgewohnt" aber immer noch funktional. Die Beheizung des Poolbereiches hat uns etwas Probleme bereitet - entsprechend auch die Beheizung des Poolbadezimmers - vielleicht wäre eine kleine Beschreibung hilfreich.
GastDeutschland
4 von 5
4 von 5
4 out of 5
4 von 5
4 von 5
4 out of 5
Sehr schönes Haus mit einem super Pool.
Mandy IgelDeutschland
4 von 5
4 von 5
4 out of 5
4 von 5
4 von 5
4 out of 5
Ein älteres Haus mit einem gewissen Charme! Vieles ist in die Jahre gekommen, könnte mal erneuert werden. Es ist aber alles gut nutzbar und man fühlt sich wohl. Die Betten sind wirklich bequem. Die eingezäunte Terrasse ist für einen Aufenthalt mit Hund perfekt geeignet.
GastDeutschland
4.5 von 5
4.5 von 5
4.5 out of 5
4.5 von 5
4.5 von 5
4.5 out of 5
Ein trotz seiner Größe gemütliches Haus. Der Pool ist sehr Kinder-geeignet, weil er eine sehr kleine, aber feine Ecke hat, in der auch der Nichtschwimmer baden kann. Der Ofen steht etwas dezentral im großen Raum, so dass wir ihn nicht genutzt haben. Viele gemütliche Schlafplätze
Ausstattung
Kalender
Über die Gegend

Dein Servicebüro in der Nähe
Esmark Bjerregard
Sønder Klitvej 195
6960 Hvide Sande
Telefon: 00 45 69 15 96 12
E-Mail: bjerregaard@esmark.dk
988
988
988
Aufgelistet in: GebieteSkodbjergeSkodbjergevej 28, 6960 Hvide Sande
Alle ansehen: Ferienhäuser in Dänemark





















































