Tolles Reetdachhaus mit Außenwhirlpool in Blåvand, 300 m Strand
Ingridsvej 1, Blåvand - Ferienhausnr.: 60256
Über das Haus
Nur 300 Meter vom weißen Badestrand Blåvands entfernt, erwartet euch dieses schöne reetgedeckte Haus, welches in 2020 renoviert und modernisiert wurde. Das gemütliche Dekor strahlt eine klassische Ferienhausatmosphäre aus - unter anderem mit Holzofen, Sauna, abgeschirmter Terrasse und Balkon mit Blick auf die Umgebung. Hier könnt ihr mit bis zu 8 Personen Urlaub machen, und die Hunde sind ebenfalls willkommen. Euch erwartet hier ab 2021 ein Außenwhirlpool und eine tolle, überdachte Terrasse.
Sauna und Balkon mit Aussicht im Ingridsvej 1
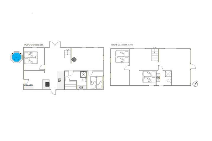
Das reetgedeckte Ferienhaus auf Ingridsvej 1, bietet auf zwei Etagen reichlich Platz für insgesamt 8 Personen. Die beiden Stockwerke sind durch eine Treppe innerhalb des Hauses miteinander verbunden. 2 Schlafzimmer, eine gemütliche Sitzecke mit tollem Ausblick sowie ein weiteres Badezimmer im Obergeschoss sind ideal, wenn ihr Freunde oder eure Teenager dabei habt, die auch einmal etwas für sich selbst sein wollen. Für Fussball begeisterte befindet sich in der 1. Etage ein Kickertisch, wo das ein oder andere Turnier gespielt werden kann, sowie in einem Nebengebäude einen Billardtisch, der (aus Gründen der Schonung hinsichtlich Feuchtigkeit) von April bis September genutzt werden kann.
Beide Etagen sind mit einem Duschbad ausgestattet, wobei das Badezimmer in der unteren Etage auch mit einer Sauna versehen ist. Vom Wohnzimmer im Erdgeschoss gelangt ihr auf eine große, abgeschirmte Terrasse, auf der ihr die sonnigen Tage genießen könnt. In der obersten Etage habt ihr Zugang zu einem schönen Balkon, von dem aus ihr einen tollen Blick auf den Leuchtturm Blåvandshuk habt.
Gemütliche Ferienhausatmosphäre - Kamin, Sauna und Außenwhirlpool
Die Einrichtung strahlt eine gemütliche Ferienhausatmosphäre durch aufgehellte Decken mit Holzbalken und klassischem Interieur aus. Im Wohnzimmer im Erdgeschoss befindet sich der Kamin, der garantiert das Zentrum vieler wunderbarer Urlaubsmomente in guter Gesellschaft bildet, mit den knisternden Flammen im Hintergrund.
Wer nach noch ein wenig mehr Wärme verlangt, freut sich auf die Sauna im Bad und den tollen Außenwhirlpool auf der Terrasse. Hier können entspannte Stunden verbracht und neue Energien getankt werden. Gönnt euch dieses Erlebnis und eine kleine Auszeit vom Alltag! Der Terrassenbereich wurde in 2020 erweitert und modernisiert, sodass euch hier ein schöner und gemütlicher Outdoorbereich zur Verfügung steht, wo ihr viele Stunden an der frischen Luft zubringen und euch entspannen könnt. Bei etwas windigem Wetter könnt ihr in der gemütlich eingerichteten überdachten Terrasse die frische Luft geniessen.
Es gibt auch einen abschließbaren Schuppen, in dem ihr z.B. eure Fahrräder oder anderes hinstellen könnt.
Wunderschöne Lage, nur 300 m vom Strand und 10 Gehminuten vom Zentrum
Das Haus hat eine wirklich schöne Lage in Blåvand, nur 300 Meter vom Strand entfernt. Nur fünf Minuten zu Fuß durch die Dünenlandschaft trennen euch von der tosenden Nordsee und dem herrlichen Strand, der das ganze Jahr über neue und aufregende Naturerlebnisse bietet.
Ein Spaziergang am Wasser ist immer erfrischend, und während die Kinder am Strand nach Steinen und Muscheln suchen, können die Hunde herumtoben. Zum gemütlichen Stadtzentrum von Blåvand, das vor allem im Sommer voller Leben ist, sind es nur 10 Gehminuten. Hier findet ihr viele verschiedene Restaurants, aufregende Geschäfte und Fachgeschäfte, die einen Besuch wert sind.
- Schlafzimmer:4
- Wohn-/Grundfläche:160 / 3744 m²
- Renoviert / Baujahr:2020 / 1986
Servicebüro
Esmark Blåvand
Telefon: 00 45 69 15 96 16
E-Mail: blaavand@esmark.dk
Schlüsselübergabe
Die Schlüssel können ab 15:00 Uhr abgeholt werden, wir geben sie aber auch gerne früher heraus, wenn das Haus für eine frühere Anreise bereit ist.
Antonino AccettaDeutschland
3.5 von 5
3.5 von 5
Das Haus liegt in einer sehr guten Lage, nur wenige Schritte vom Strand entfernt. Es handelt sich um ein älteres Gebäude mit viel Charme. Ein Teil des Hauses lässt sich gut beheizen, allerdings bleibt der Bereich mit Esszimmer und Küche beim Heizen leider etwas kühl. Schade ist auch, dass der Billardtisch nur in bestimmten Monaten genutzt werden kann. Besonders schön war dafür der Außen-Whirlpool, der selbst bei Minustemperaturen für echte Entspannung gesorgt hat.
Antwort von Esmark: (14/01/2026)
Sehr geehrter Gast,
es ist richtig, dass der Billardtisch nur von April bis September genutzt werden kann, aber dies ist auch in der Beschreibung des Hauses angegeben.
Das Filter der Wärmepumpe wurde nach Ihrem Aufenthalt gereinigt, wodurch sie nun deutlich besser heizt.
VG Team Esmark
Sehr geehrter Gast
Das Filter der Wärmepumpe wurde nach Ihrem Aufenthalt gereinigt, wodurch sie nun deutlich besser heizt.
Claas RöhrsDeutschland
5 von 5
5 von 5
Es ist ein schönes Ferienhaus mit dem klassischen Dänischen Schwarm. Am Morgen kann man das Meer hören und es ist nur eine kleiner Fußweg zum Strand. Der Weg in das Stadt innere ist etwas länger und muss eventuell mit dem Auto gefahren werden wenn man selbst etwas eingeschränkt ist bei der Bewegung. Sonst hat das Ferienhaus alles was man braucht. Man hat einen Whirlpool, Billardtisch, Sauna, Tischkicker, Grill, Kamin, Dart Scheibe und zwei Wohnzimmer. Der Platz ist für 6/7 Personen und 2 Hunde ausreichend, bei 8 Personen könnte das eine Bett oben etwas zu kein werden.
Gerd LeopoldDeutschland
5 von 5
5 von 5
Ein Ferienhaus, dass keine Wünsche offen lässt, Erholung und Entspannung sind garantiert, der Komfort begeistert. Besonders fasziniert waren wir vom Balkon und dem tollen Blick bis zum Leuchtturm bzw. den sensationellen Tierbeobachtungen.
GastDeutschland
5 von 5
5 von 5
Ich kann dieses Ferienhaus nur jedem empfehlen!Ausstattung ist top, die Betten sehr bequem! Wir haben uns gleich wie zuhause gefühlt!
Erling JürgensenDanmarkKI Übersetzt
4.5 von 5
4.5 von 5
Ein schönes Haus, das in einer schönen Gegend liegt.
GastDeutschland
4 von 5
4 von 5
Das Ferienhaus war sehr schön, alles, was man brauchte, war vorhanden. Schade war, dass wir den Kamin wegen des kaputten Schamottsteines nicht nutzen durften. Das hätte die Abende noch gemütlicher gemacht. In der Sauna hätten wir uns einen Saunaeimer und eine Schöpfkelle gewünscht.
Antwort von Esmark: (09/06/2025)
Hej Katja, der Hauseigentümer hat den Kamin repariert, so kann man diesen nun wieder einwandfrei benutzen. 😊
Nick NeuhausDeutschland
4 von 5
4 von 5
Schön eingerichtetes Ferienhaus in ruhiger Lage. In wenigen Minuten ist man am Strand. Viele diverse Sitzgelegenheit um den ganzen Tag bei jedem Wetter, Landschaft und Haus genießen zu können. Die Badezimmer sind leider etwas altmodisch aber in Ordnung. Staubsauger saugt schlecht. Badezimmer könnten renoviert werden
Antwort von Esmark: (28/04/2025)
Der Hausbesitzer hat ein neues Möbelstück für das Badezimmer im Erdgeschoss und einen neuen Staubsauger gekauft.
Jürgen KoopDeutschland
5 von 5
5 von 5
Sehr schönes Haus, gute Ausstattung mit Außenwhirlpool und Sauna. Sehr sauber. Insbesondere die Betten (Matratzen, Decken und Kopfkissen).Sehr gute Lage in Strandnähe.
GastDeutschland
3.5 von 5
3.5 von 5
Das Haus ist geräumig. Allerdings würden wir es nicht mit 8 Personen belegen, da ein Schlafraum (oben) offen ist. Die Ausstattung ist sehr gut. Die Lage genial. Es ist ein sehr kurzer Weg zum Strand. Der Whirlpool und die Sauna sind ein zusätzliches Highlight. Da im EG keine Heizung ist, ist dieser wirklich kalt.da reicht das Heizen über den Holzofen nicht aus. Oben ist es super.
Antwort von Esmark:
Hej, Im EG befindet sich eine Wärmepumpe, diese dient zum heizen im unteren Bereich des Ferienhauses. Viele Grüsse Team Esmark
Miriam StiegDeutschland
5 von 5
5 von 5
Sehr schön eingerichtet und gut ausgestattetes Ferienhaus. Kurzer Weg zum Strand und zur Stadt! Jederzeit gerne wieder!
Dirk ClaußenDeutschland
4.5 von 5
4.5 von 5
Sehr schönes Haus, sehr sauber, alles heil und gepflegt. Die Schlafzimmer sind auch etwas größer, als in vielen anderen Häusern. Wir waren sehr zufrieden. Lage war auch sehr gut. Fußläufig war der Ortskern zu erreichen und zum Strand 5 Minuten zu Fuß .
GastDeutschland
5 von 5
5 von 5
Wir waren total begeistert. Alles was man zur Küche braucht war vorhanden. Badezimmer und Betten waren sauben Traumhaft. Uns hat es super gefallen. Empfehlen es auf jedenfall weiter
GastDeutschland
4.5 von 5
4.5 von 5
Sehr gemütliches Ferienhaus mit allem was man braucht. Ideal um mit bis zu 8 Personen zu verreisen und auch super für Hunde. Die Lage in direkter Strandnähe ist großartig. Der Whirlpool und die Sauna sind klasse. Die Bäder sind gut, auch wenn etwas in die Jahre gekommen. Heitzt man nicht, kühlt das Haus recht schnell aus aber dafür wird es mit der Wärmepumpe/Klimaanlage und der Fußbodenheizung in den Bädern schnell warm. Und auch der Ofen ist ein Pluspunkt.
Ausstattung
Kalender
Über die Gegend

Dein Servicebüro in der Nähe
Esmark Blåvand
Blåvandvej 1
6857 Blåvand
Telefon: 00 45 69 15 96 16
E-Mail: blaavand@esmark.dk
723
723
898
Aufgelistet in: GebieteBlåvandIngridsvej 1, 6857 Blåvand
Alle ansehen: Ferienhäuser in Dänemark



























































