Wohnen in zentraler Lage - Bad mit Sauna und Whirlpool
Horns Bjerge 3, 54, Blåvand - Ferienhausnr.: 60052
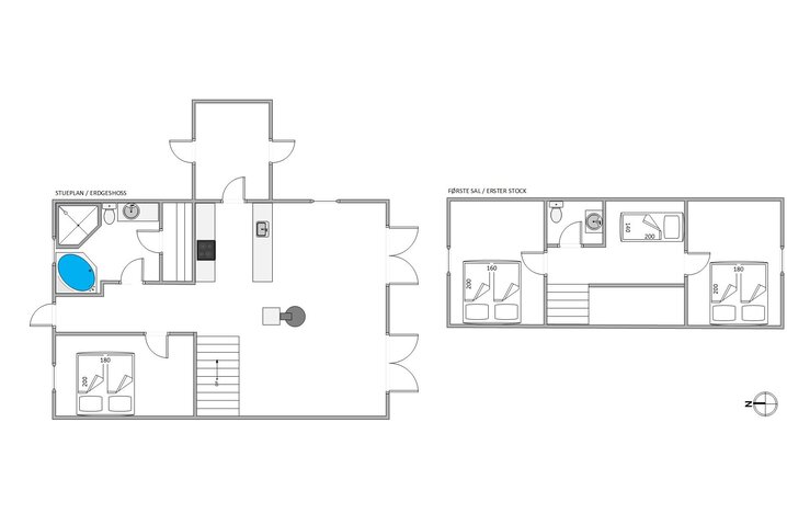
Über das Haus
Urgemütlicher Nordic Style lädt euch in dieses Ferienhaus ein, das außer mit viel Licht und Ästhetik auch noch mit seiner zentralen Lage und einer Sauna und einen Whirlpool zu überzeugen weiß.
Eine umfassende Ausstattung und Sauna
In zentraler Lage und zugleich hervorragender Anbindung an den Strand und die City steht dieses Ferienhaus für alle parat, die in stilvollem Flair Urlaub machen und dabei eine breite Palette an Annehmlichkeiten auskosten möchten.
In offener Bauweise empfängt euch hier zunächst ein weitläufiges Erdgeschoss, in dem sich die Hautwohnbereiche befinden.
Hingucker und Kuschelecke in einem: die behagliche Sofazone. Ist euch nach einem spannenden Fernsehfilm oder möchtet ihr lieber eure Füße in Richtung Kaminofen strecken? Mögt ihr gern verträumt aus dem Fenster oder in ein unterhaltsames Urlaubsbuch schauen? Ihr allein bestimmt, was wann getan oder gelassen wird.
Vielleicht hat der eine oder andere auch Lust, sich in der in den Raum integrierten Küche auszutoben, die mit ihrer Vollausstattung auch zu gemeinsamen Kochaktionen einlädt?
Entschleunigung darf in unserem schönen Ferienhaus in Blåvand Pflichtprogramm sein! Die Sauna und der Whirlpool kommen dem Bedürfnis nach wohltuender Wärme nach und werden ihren Teil dazu beitragen, dass ihr abends in euren kuscheligen Schlafräumen - einer im Erdgeschoss, die beiden anderen im Obergeschoss – tiefenentspannt in den neuen Tag hineinschlummert.
Es gibt zwei Bäder im Haus - ein großes mit Fußbodenheizung im Erdgeschoss und ein Gäste-WC im 1.
Waschmaschine, Trockner, Gefrierschrank, Geschirrspüler, eine Fußbodenheizung im Badezimmer und WLAN-Internet komplettieren das rundum Sorglos-Paket des Hauses. Im Obergeschoss ist auch eine Gästetoilette zur Verfügung.
Wohnen in zentraler Lage und Strandnähe
Die örtlichen Gegebenheiten im Horns Bjerge 3-54 sind herausragend: Das cremefarbene Holzhaus mit seinen weißen Sprossenfenstern liegt in der charmanten Umgebung des Ortsteils Blåvands Lyst. Ihr genießt hier die Nähe von Einkaufsmöglichkeiten (100 m!) und Restaurants, des Strandes und Bowlingcenters.
Wer Lust auf Natur hat, ist hier genau richtig: in fußläufiger Entfernung findet ihr Dünen- und Heidelandschaften, kleine Wäldchen und natürlich das lange sandige Meeresufer.
Der Filsø, ein Naturschutzgebiet in der Nähe von Henne Strand, ist ein schönes Ausflugsziel. Ihr könnt an dem großen See unzählige Vögel, Fischotter und Rothirsche beobachten.
In unmittelbarer Nähe Blåvands findet ihr das Bunkermuseum Tirpitz oder den Blåvand-Zoo. Auch der Golfplatz von Ho ist nicht weit.
Bitte beachtet, dass die Gartenmöbeln in den Wintermonaten entfernt werden.
- Schlafzimmer:3
- Wohn-/Grundfläche:120 / 100 m²
- Baujahr:2002
Servicebüro
Esmark Blåvand
Telefon: 00 45 69 15 96 16
E-Mail: blaavand@esmark.dk
Schlüsselübergabe
Die Schlüssel können ab 15:00 Uhr abgeholt werden, wir geben sie aber auch gerne früher heraus, wenn das Haus für eine frühere Anreise bereit ist.
Silvia TomfordeDeutschland
5 von 5
5 von 5
Ein Haus,was keine Wünsche offen lässt, super Lage,schön eingerichtet, sehr hygge.Ich würde es zu 100%weiterempfehlen.
GastDeutschland
4.5 von 5
4.5 von 5
Wir buchen seit Jahren Häuser in Horns Bjerge 3. Alleine das sagt ja schon viel darüber aus, wie wohl wir uns dort fühlen. Die Siedlung ist sehr gepflegt und aus unserer Sicht für einen Herbsturlaub optimal. Die Häuser sind schon etwas in die Jahre gekommen, bestechen aber nach wie vor durch ihren schönen und praktischen Schnitt. Dieses Haus fällt durch eine zweite Toilette, eine Duschtür, einen Induktionsherd und 3(!) Fernseher sehr positiv auf.
GastDeutschland
4 von 5
4 von 5
Tolles Haus, tolle Umgebung und nette Menschen. Das Haus zeigt natürlich Gebrauchsspuren, mit denen es sich aber super leben lässt. An Ausstattung, speziell in der Küche, fehlt es an nichts und alles ist in einem guten Zustand.
Helle KortegaardDanmarkKI Übersetzt
4.5 von 5
4.5 von 5
Schönes Ferienhaus, ästhetisch schön, gute Betten
Kelvin AndersenDanmarkKI Übersetzt
5 von 5
5 von 5
Es war alles lecker, alles war in Ordnung Ein guter Sessel. Aber ansonsten sehr schön eingerichtet
Udo und Elli HoppeDeutschland
5 von 5
5 von 5
4 Wochen durften wir in diesem gemütlichen Haus wohnen. Wir waren voll und ganz zufrieden und freuen uns wieder bei Esmark zu buchen. Vielen lieben Dank!
Susanne BöttcherDeutschland
4 von 5
4 von 5
Top gelegenes gemütliches Haus. Oben große Schlafzimmer - eines mit Fernseher. Sitzgruppe ganz okay- man sinkt sehr tief ein, aber sonst ganz bequem. Küche praktisch eingerichtet mit allem was man braucht- sogar ein Toaster! . Badezimmer mit Fön und geräumig. Wirrpool und Sauna ok- aber wir nutzen diese nie. Unteres Schlafzimmer kleiner- Steckdosen dort etwas ungünstig und kein Nachttisch- weil eben kleiner
Gitte LippertDanmarkKI Übersetzt
5 von 5
5 von 5
Fantastisch gemütliches und gut funktionierendes Haus, so heimelig und super gut eingerichtet, alles vorhanden. Gute Betten und Decken/Kissen, wirklich ein super schönes Haus. :-) Tausend Dank für das "Ausleihen". Kann auf jeden Fall empfohlen werden. Vielleicht ein anderer Toaster, es konnten nur sehr dünne Brotscheiben hinein, z.B. konnte keine halbe Semmel hineinpassen :-)
GastDeutschland
4 von 5
4 von 5
Schönes Haus mit toller ruhiger und doch zentralen Lage. Die gesamte Anlage ist liebevoll angelegt und sehr gepflegt.Wir haben uns hier sehr wohl gefühlt und kommen gerne wieder.
GæstDanmarkKI Übersetzt
4 von 5
4 von 5
Schönes Ferienhaus mit guter Lage. Wir kommen gerne wieder. Es gibt einiges an Porzellan, das geschnitten ist und ersetzt werden muss. Fehlender Chromecast im Wohnzimmer.
Antwort von Esmark: (15/07/2025)
Der Hauseigentümer hat einen zusätzlichen Chromecast (14/07/2025) gekauft, sodass er jetzt in allen 3 Fernsehern im Haus vorhanden ist.
Marcel GeickDeutschland
4 von 5
4 von 5
Sehr gemütlich und super für 4 Personen
GastDeutschland
4 von 5
4 von 5
Das Haus ist super, sehr großzügig geschnitten und hat alles was man braucht. Die Anlage ist ruhig und gepflegt. Wir haben uns sehr wohl gefühlt.
GastDeutschland
5 von 5
5 von 5
Uns hat alles gefallen, wir haben nichts zu beanstanden.
Hans Joachim SchirmDeutschland
4.5 von 5
4.5 von 5
Wir haben uns dort sehr wohl gefühlt. Es war alles vorhanden, was man für den Urlaub braucht. Mit der kleinen Terasse und dem Bach fühlt man sich gleich wohl. Für 4 Erwachsene wäre es schön, wenn es noch ein kleines Badezimmer gäbe, aber ansonsten ein schönes Ferienhaus. Wir würden es wieder buchen.
Carina Schulte-CoerneDeutschland
5 von 5
5 von 5
Ein sehr liebevolle eingerichtetes und gepflegtes Ferienhaus.
GastDeutschland
4.5 von 5
4.5 von 5
Wir waren zufrieden. Ein helles, sauberes und freundliches Haus. Lediglich ein angestoßener TV Schrank und oben im Flur 2 Schränke mit Schlössern sind zu "bemängeln".
Ausstattung
Kalender
Über die Gegend

Dein Servicebüro in der Nähe
Esmark Blåvand
Blåvandvej 1
6857 Blåvand
Telefon: 00 45 69 15 96 16
E-Mail: blaavand@esmark.dk
438
478
478
Aufgelistet in: GebieteBlåvandHorns Bjerge 3, 54, 6857 Blåvand
Alle ansehen: Ferienhäuser in Dänemark
















































