Älteres gemütliches Ferienhaus im Landhausstil in Skodbjerge
Skodbovej 25, Skodbjerge - Ferienhausnr.: CC1066
Über das Haus
Ein charmantes Ferienhaus kannst du im Skodbovej 25 finden. Hier werden Erinnerungen wach und ein toller Urlaub mit 6 Personen und 2 Hunden kann beginnen. Der Landhausstil verleiht dem Haus eine ganz eigene Atmosphäre und lädt zu entspannten und unterhaltsamen Stunden zusammen ein.
Charmanter Einrichtungsstil mit besonderem Flair
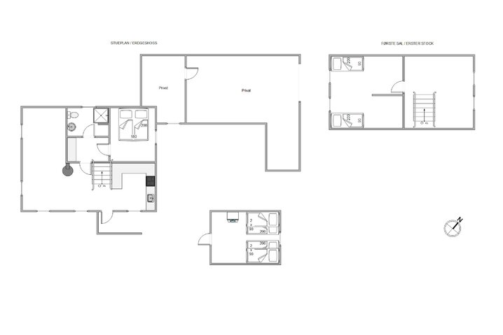
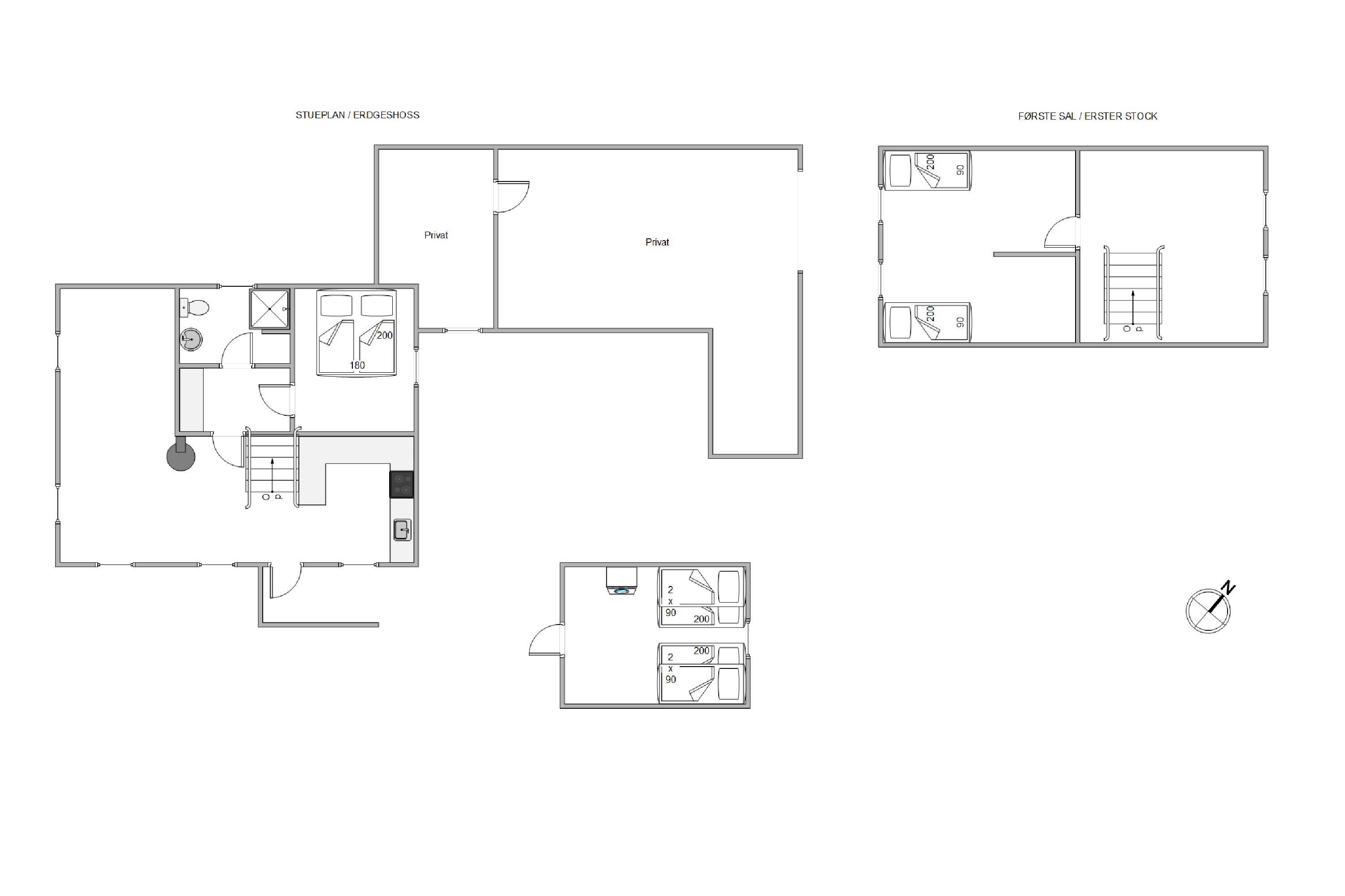
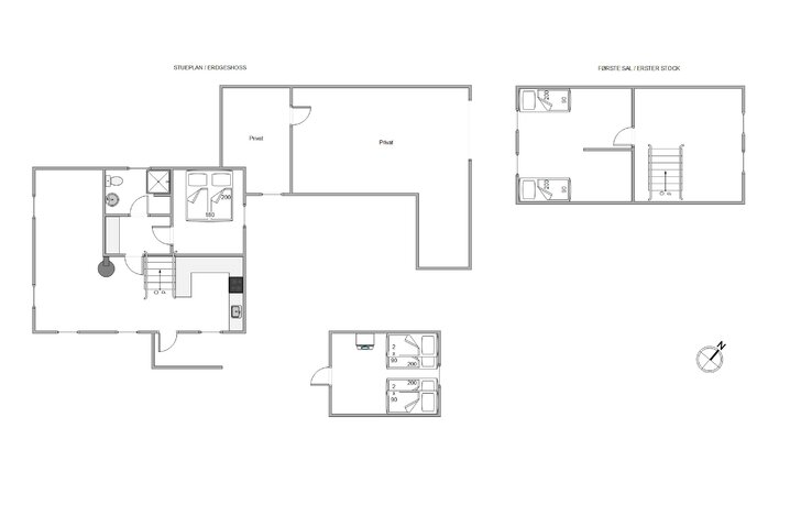
Der Landhausstil ist in diesem Ferienhaus ein ganz besonderer. Rustikal eingerichtet wirkt die Urlaubsunterkunft freundlich und heimisch. Du wohnst über 2 Etagen verteilt, wobei im Obergeschoss das Wohnzimmer und eines der beiden Schlafzimmer liegt. Von hier aus kannst du durch die Fenster auf die Dünenlandschaft schauen, die das Haus umgibt. Es gibt 3 deutsche Kanäle in diesem Ferienhaus.
Im Erdgeschoss befindet sich die Küche mit dem Essbereich und ein weiteres Schlafzimmer. Als Herzstück des Hauses kann hier zusammen gekocht werden und die nächsten Urlaubstage geplant werden. Toll dabei ist besonders der Kaminofen, der – natürlich zentral gelegen – eine tolle Atmosphäre schafft und den ganzen Raum heißt.
Das kleine Badezimmer im Erdgeschoss verfügt über eine Fußbodenheizung, die eure Füße an kühleren Tagen des Jahres schön warm hält. Aber dies ist nicht die einzige Ausstattung des Ferienhauses: Außerdem gibt es eine Geschirrspülmaschine, 2 Kühlschränke, eine Waschmaschine und einen Wäschetrockner. Die energiesparende Wärmepumpe kommt dann noch obendrauf.
Dünenlandschaft so weit das Auge reicht
Windgeschützt gelegen und komplett geschlossen sind die Terrassen rund ums Haus ein toller Aufenthaltsplatz für sonnige Tage an der Küste. Die Hunde kannst du entweder auf der Terrasse spielen lassen oder mit ihnen zusammen die Umgebung des Ferienhauses entdecken. Nur ein netter Spaziergang trennt euch vom Strand und der kühlen Nordsee.
Nach einem langen Tag am Strand oder in der Umgebung kannst du abends den Grill anzünden und deine Lieblingsgerichte kochen oder vielleicht sogar neue Gerichte ausprobieren. Bei einem Glas Wein könnt ihr dann der Sonne beim Untergehen zusehen. Habt ihr schon besprochen, wo es morgen hingeht?
Am nächsten Morgen kannst du frische Brötchen bei dem Bäcker kaufen. Hier brauchst du nur wenige Minuten mit dem Auto. Wie wäre es ansonsten mit einem Besuch der Hafenstadt Hvide Sande, die weiter im Norden liegt? Hier kannst du frischen Fisch und andere Spezialitäten kaufen, aber auch durch die Geschäfte gemütlich bummeln.
- Schlafzimmer:3
- Wohn-/Grundfläche:95 / 2540 m²
- Renoviert / Baujahr:2015 / 1968
Servicebüro
Esmark Bjerregard
Telefon: 00 45 69 15 96 12
E-Mail: bjerregaard@esmark.dk
Schlüsselübergabe
Den Schlüssel könnt ihr ab 15.00 Uhr abholen. Wir händigen euren Schlüssel aber auch gerne vorzeitig aus, wenn das Haus früher bezugsfertig ist.
Britta GelhaarDeutschland
5 von 5
5 von 5
Ein sehr schönes und super gemütliches Ferienhaus. Wir sind reingekommen und haben uns wohlgefühlt. Perfekt für einen Urlaub mit Hunden.
GastDeutschland
5 von 5
5 von 5
Ein sehr gemütliches, heimeliges Ferienhaus. Viele Sitzecken auf der großen geschlossenen Terrasse. Die gut ausgestattete Küche lädt zum kochen und backen ein. Zwei Sitzecken mit Sofas und Fernsehern lassen bei schlechtem Wetter keine Langeweile aufkommen. Das Bad ist für zwei Personen ausreichend, nur eine Toilette und eine sehr kleine Dusche ist für sechs Personen zu wenig Kapazität.
Wilhelm Von HollenDeutschland
3.5 von 5
3.5 von 5
Das Haus ist sehr schön eingerichtet. die Betten sind sehr gut. Vielleicht ein Fernseher zu viel. Wenig deutsche Programm (Max. Drei) Es gibt zu wenig Schrankraum. (Ein Schrank für alle max 6 Leute. Im kleinen Haus keine Schränke. Die Dusche ist sehr klein.
Wilfried MauDeutschland
4.5 von 5
4.5 von 5
Das Haus ist in einem guten Zustand,sehr gut gedämmt und dadurch sehr leise.Die Terrasse ist groß, geschlossen und sehr gut ausgestattet Für Hunde top.Das Badezimmer im Haus ist sehr klein.Den oberen Bereich erreicht man über eine steile Treppe.Für ältere Menschen könnte es schwierig werden.
Ralf NickelDeutschland
5 von 5
5 von 5
Das Ferienhaus ist klein, gemütlich und hat alles was man sich für einen Hygge Urlaub wünscht. Der Kamin macht das ganze Haus schön warm. Die Terasse ist riesig und schön eingezäunt. Die Küche hat alles was man braucht. Für 8 Personen würden wir das Haus als zu klein empfinden. Wir würden das Haus auf jeden Fall wieder buchen.
GastDeutschland
5 von 5
5 von 5
Gemütliches, Reet-gedecktes Ferienhaus in ruhiger Lage. Tolle Ausstattung. Alles da, was man braucht.
GastDeutschland
4.5 von 5
4.5 von 5
Gemütlich eingerichtetes Ferienhaus in toller Lage, nicht weit vom Meer. Ruhige Umgebung, schöne Terrasse, komplett eingezäunt, sehr schön für Urlaub mit Hund.Betten sind okay, für uns etwas weich. Das WLAN reicht nicht bis zum Anex, was für uns gut war. Dadurch waren die Kids oft im Haus und wir konnten ihren Konsum besser überwachen. Der Starnd war trotz Badewetter fast menschenleer, einfach traumhaft.
Werner HoffmeyerDeutschland
4.5 von 5
4.5 von 5
Wir waren zum 4. Mal in diesem gemütlichen Reetdachhaus und es war wieder eine wunderschöne Zeit. Selbst bei kühlen Temperaturen konnten wir die tolle Außenanlage sehr oft nutzen und windgeschützt gemütliche Lesestunden verbringen. Für uns immer wieder topp!
Sabine HoltkampDeutschland
5 von 5
5 von 5
Ein sehr gemütlich und liebevoll eingerichtetes Ferienhaus! Hygge
GastDeutschland
5 von 5
5 von 5
Ein sehr schönes Ferienhaus über 2 Etagen. Es ist klein, aber super gemütlich und durch die 2. Etage ist auch ein Rückzug mal möglich. Die Küche hat alles, was man braucht, die Terrasse ist traumhaft und mit Hund optimal. Wir haben uns sofort wohl gefühlt.
Ausstattung
Kalender
Über die Gegend

Dein Servicebüro in der Nähe
Esmark Bjerregard
Sønder Klitvej 195
6960 Hvide Sande
Telefon: 00 45 69 15 96 12
E-Mail: bjerregaard@esmark.dk
338
338
388
Aufgelistet in: GebieteSkodbjergeSkodbovej 25, 6960 Hvide Sande
Alle ansehen: Ferienhäuser in Dänemark














































