Über das Haus
Im Højsvej 30 verbirgt sich das gemütliche Ferienhaus, inmitten des Waldlandes. Hier könnt ihr die Ferien im traditionellen Sommerhausstil genießen. Zu der praktischen Ausstattung gehört eine Spülmaschine und Fußbodenheizung, in der Küche sowie im Badezimmer, außerdem gibt es eine geräumige Sauna und eine schöne Terrasse – perfekt für z.B. den Urlaub mit Hund.
Dänische Gemütlichkeit mit praktischer Ausstattung
In diesem traumhaften Sommerhaus findet ihr ausreichend Ruhe. Insgesamt bietet es Platz für 6 Bewohner und ist die perfekte Wahl für die kommenden Familien oder Pärchen Urlaube. Sogar euer Hund ist hier gerne gesehen.
Zudem ist das Haus mit einer Waschmaschine, Trockner und einer Spülmaschine ausgestattet, somit habt ihr extra viel Freizeit.
Der knisternde Kaminoffen sorgt für Wärme an Kalten Tagen und für extra Ferienstimmung, während ihr ein gutes Buch auf dem Sofa, euer Abendessen in der Küche, oder den Nachmittag bei einem Glass Wein am großen Esstisch genießt.
Genießt die frische Luft und ladet eure Batterien in der Hauseigenen Sauna auf
Auf den Naturbelassenen Grundstück, könnt ihr ungestört die Liegestühle erobern, oder euer Frühstuck auf der Sonnigen Terrasse Essen. Beim erkunden des Grundstückes findet ihr außerdem noch eine Bank, umgeben von Bäumen. Hier findet ihr die benötigte Ruhe um zu entspannen.
Die geschlossene Terrasse ist perfekt für Kinder und Hunde geeignet, hier kann gespielt werden, während ihr Sonne tankt, oder Grillt. In der Umgebung findet ihr zudem die wunderschöne Blåbjerg Plantage, hier kann man die kleinen Naturpfade erkunden und die herumlaufenden Tiere beobachten.
Nach einem Tag an der frischen Luft, müsst ihr euch natürlich erstmal entspannen und was gibt es da besseres als eine Sauna? In der Hauseigenen Sauna, hab ihr die Möglichkeit eure Batterien aufladen und Energie für die kommenden Ferientage zu sammeln.
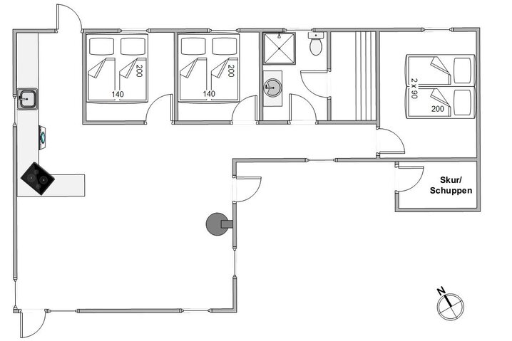
- Schlafzimmer:3
- Wohn-/Grundfläche:75 / 1800 m²
- Renoviert / Baujahr:2006 / 1976
Servicebüro
Esmark Houstrup
Telefon: 00 45 69 15 96 13
E-Mail: houstrup@esmark.dk
Schlüsselübergabe
Den Schlüssel könnt ihr ab 15.00 Uhr abholen. Wir händigen euren Schlüssel aber auch gerne vorzeitig aus, wenn das Haus früher bezugsfertig ist.
Kathi NembachDeutschland
3.5 von 5
3.5 von 5
Es ist ein sehr schönes Haus mit einer tollen Aufteilung und Ausstattung. Das Bad und die Sauna sind etwas in die Jahre gekommen und werden hoffentlich bald renoviert. Ansonsten sehr zu empfehlen!
Jörg ZapelDeutschland
4.5 von 5
4.5 von 5
Sehr schöne, ruhige Lage, Preis-Leistungs-Verhältnis passt, Raumaufteilung ist super. Große Terrasse, die abgesperrt werden kann für den Hund perfekt.
Horst JohannDeutschland
4.5 von 5
4.5 von 5
Das Ferienhaus steht in einer wunderbaren, völlig ruhigen Gegend. Es ist mit allem ausgestattet, was man zum Wohlfühlen braucht. Perfekt ausgestattete Küche, sehr bequeme Betten, gute Heizmöglichkeiten mit Wärmepumpe, Elektroheizung und Holzofen. Schöne Tischgruppe auf der Terrasse und im Garten!
GastDeutschland
5 von 5
5 von 5
Super gemütlich, Schön gelegen im wild bewachsenen Kiefern Grundstück, Und trotzdem hell weil große Fenster
GastDeutschland
4.5 von 5
4.5 von 5
Das Ferienhaus bietet alles, was wir benötigen, es ist sauber und in einem guten Zustand. Teile der Innenausstattung sind schon etwas älter (Bad, Böden) aber weiterhin funktional. Sehr gut gefallen hat uns die Ausstattung der Küche (insbesondere sehr gute Töpfe, ordentliche Messer) und die sehr guten Betten/Matratzen, in denen wir wirklich prima geschlafen haben.
Ausstattung
Kalender
Über die Gegend

Dein Servicebüro in der Nähe
Esmark Houstrup
Houstrup Strandvej 4
6830 Nørre Nebel
Telefon: 00 45 69 15 96 13
E-Mail: houstrup@esmark.dk
528
528
528
Aufgelistet in: GebieteHoustrupHøjsvej 30, 6830 Nr. Nebel
Alle ansehen: Ferienhäuser in Dänemark










































